105 avaliações
A partir de
$300Kawaguchi 848-15, Fujikawaguchiko, 4010304, Japão
105 avaliações
1/35

Estacionamento Privado Gratuito
Wifi grátis
Serviço de streaming (como Netflix)
Ar-condicionado
Entrada privativa
Estacionamento no Local
Terraço
Vista para a montanha
Welcome to Erable Mt.Fuji "Kaze," your cozy mountain retreat nestled just a stone's throw away from the iconic beauty of Mount Fuji! Located in Kōfu, Japan, this charming 3-star hotel is a perfect hideaway for travelers looking to soak in breathtaking views while indulging in the comforts of home. With prices starting at a budget-friendly rate, you can enjoy a delightful getaway without breaking the bank!
Imagine waking up to stunning mountain vistas from your private balcony, sipping coffee as you step onto your terrace and breathe in the fresh, crisp air. With a fully equipped kitchen at your disposal, you can whip up a delicious breakfast before setting off to explore the natural wonders surrounding you. And when it’s time to unwind, enjoy free Wi-Fi or kick back and relax with your favorite streaming service—yes, that's right, Netflix and chill in the mountains!
Rated by fellow travelers as a superb oasis, Erable Mt.Fuji "Kaze" is raved about in reviews for its welcoming atmosphere and immaculate amenities. Enjoy private parking and all the comforts you could desire—air conditioning, a lovely garden view, and non-smoking rooms that provide a perfect sanctuary at the end of your day. With a total of 105 reviews reflecting the experience of past guests, the warm vibes and stunning surroundings of this hidden gem are calling your name!
As you venture out to explore the enchanting area surrounding Erable Mt.Fuji "Kaze," you'll find a treasure trove of adventures waiting for you. The majestic Mount Fuji is right at your doorstep, beckoning and challenging those with a spirit for exploration. Whether you're in the mood for invigorating hiking trails, serene nature walks, or a day of photography capturing the awe-inspiring landscapes, your stay here offers an exhilarating gateway to the great outdoors. Don't forget to check out nearby attractions; they’ll only add to the rich tapestry of your travel story!
After a day filled with adventures, the hotel's inviting amenities await to rejuvenate your spirit. Picture yourself soaking in the calm of the lovely garden after dinner, basking in the tranquility that surrounds you. You can also gather with friends or fellow travelers while enjoying a delightful barbecue. The camaraderie, tantalizing grilled treats, and evening conversations under starlit skies can only add to the warmth of your mountain retreat. With ample opportunities to unwind, this isn't just a place to sleep; it becomes your personal sanctuary of relaxation.
While planning your escape, it’s also good to know that Erable Mt.Fuji "Kaze" makes paying easy with a range of accepted payment methods, including major credit cards. So, leave your worries behind and focus on making memories that last a lifetime! Whether it’s discovering the taste of local cuisine, indulging in outdoor escapades, or simply relaxing, this delightful hotel provides the perfect backdrop for an unforgettable mountain getaway. Your adventure of a lifetime is just waiting for you to book!
Aeroportos mais próximos
Tokyo International Airport
56,7miMt. Fuji Shizuoka Airport
60,4miEstacionamento Privado Gratuito
Wifi grátis
Serviço de streaming (como Netflix)
Ar-condicionado
Entrada privativa
Estacionamento no Local
Terraço
Vista para a montanha
Cozinha
Quartos para não fumantes
Vista para o jardim
Utensílios de Cozinha
Vista
Jardim
Varanda
Banheira

Mostrar 35 fotos
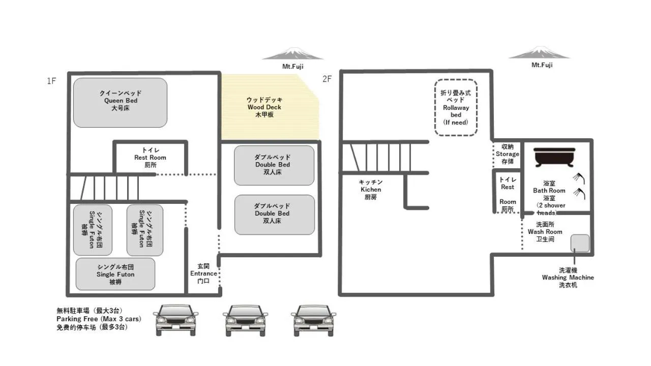
Vila, 3 Quartos
3 Colchões Futon
1 Cama Queen Size
2 Camas de Casal
1075 pés²
Vista para a montanha
Vista para o jardim
Cozinha
Banheiro Privativo
x10
+
x9
Mais detalhes
Boasting a private entrance, this air-conditioned villa comes with 1 living room, 3 separate bedrooms and 1 bathroom with a bath and a shower. The well-fitted kitchen has a stovetop, a refrigerator, kitchenware and a microwave. Featuring a terrace with garden views, this villa also features a washing machine and a flat-screen TV with streaming services. The unit has 3 beds and 3 futons.
8.5
105 avaliaçõesCategorias de avaliações
Limpeza
Conforto
Localização
Instalações
Equipe
Custo-benefício
Qualidade do WiFi
Atrações
Fujiyoshida Sengen Shrine (Kitaguchi Hongu Fuji Sengen Jinja)
0,5miKawaguchi-ko (Lake Kawaguchi)
0,9miFuji Five Lakes (Fujigoko)
3,1miNarusawa Ice Cave
6,8miAokigahara Forest
8,4miMt. Fuji 5th Station
9,3miKatsunuma Winery
9,6miLake Motosu (Motosu-ko)
11,4miFuji-Hakone-Izu National Park
13,2miShiraito Falls (Shiraito no Taki)
18miPola Museum of Art
23,2miOwakudani
23,9miHakone Open-Air Museum
25miNarukawa Art Museum
26,8miOdawara Castle (Odawara-jo)
28,7miAtrações
Fujiyoshida Sengen Shrine (Kitaguchi Hongu Fuji Sengen Jinja)
0,5miKawaguchi-ko (Lake Kawaguchi)
0,9miFuji Five Lakes (Fujigoko)
3,1miNarusawa Ice Cave
6,8miAokigahara Forest
8,4miMt. Fuji 5th Station
9,3miKatsunuma Winery
9,6miLake Motosu (Motosu-ko)
11,4miFuji-Hakone-Izu National Park
13,2miShiraito Falls (Shiraito no Taki)
18miPola Museum of Art
23,2miOwakudani
23,9miHakone Open-Air Museum
25miNarukawa Art Museum
26,8miOdawara Castle (Odawara-jo)
28,7miAeroportos
Tokyo International Airport
56,7miMt. Fuji Shizuoka Airport
60,4miEstacionamento Privado Gratuito
Wifi grátis
Serviço de streaming (como Netflix)
Ar-condicionado
Entrada privativa
Estacionamento no Local
Terraço
Vista para a montanha
Cozinha
Quartos para não fumantes
Vista para o jardim
Utensílios de Cozinha
Vista
Jardim
Varanda
Banheira
Acessibilidade
Andares superiores acessíveis apenas por escadas
Ao Ar Livre
Jardim
Terraço
Varanda
Área de Estar
Área de refeições
Sofá
Atividades
Aluguel de bicicletas
Banheiro
Banheira
Banheira ou chuveiro
Banheiro
Banheiro compartilhado
Banheiro Privativo
Chinelos
Chuveiro
Papel higiênico
Secador de cabelo
Toalhas
Comodidades do Quarto
Cabideiro
Cama dobrável
Tomada perto da cama
Varal para roupas
Ventilador
Cozinha
Chaleira elétrica
Cozinha
Fogão
Máquina de lavar
Mesa de jantar
Micro-ondas
Produtos de limpeza
Refrigerador
Torradeira
Utensílios de Cozinha
Estacionamento
Estacionamento no Local
Estacionamento Privado Gratuito
Geral
Aquecimento
Ar-condicionado
Área designada para fumantes
Entrada privativa
Propriedade livre de fumo
Quartos para não fumantes
Internet
Wifi grátis
Mídia & Tecnologia
Serviço de streaming (como Netflix)
TV
TV de tela plana
Quarto
Guarda-roupa ou armário
Segurança
Acesso por chave
Extintores de incêndio
Serviços de Recepção
Fatura fornecida
Vista
Vista
Vista para a montanha
Vista para o jardim
Vista para o pátio interno
Pets are not allowed.
WiFi is available in all areas and is free of charge.
There's no age requirement for check-in
Come and go whenever you want
Free private parking is available on site (reservation is not needed).
Políticas para crianças
Children of all ages are welcome.
Children 3 and above will be charged as adults at this property.
To see correct prices and occupancy info, add the number and ages of children in your group to your search.
Políticas de berço e cama extra
0+ anos
Additional fees are not calculated automatically in the total cost and will have to be paid for separately during your stay.
The maximum number of cribs, extra beds, and children allowed in existing beds can vary depending on the option booked.
All cribs and extra beds are subject to availability.
No capacity for cribs.
Mastercard,
JCB,
Visa,
American Express,
Diners Club
Este estabelecimento não aceita dinheiro em espécie.

1494-1 Oishi, Fujikawaguchiko, Minamitsuru District, Fujikawaguchiko, 401-0305, Japão
1,6mi de distância do hotel atual
Excelente
371 avaliações
A partir de

Funatsu 4005 , Fujikawaguchiko, 401-0301, Japão
1,5mi de distância do hotel atual
Excelente
417 avaliações
A partir de

Enzanoyashiki 2295, Yamanashi, 404-0053, Japão
14,5mi de distância do hotel atual
Excelente
31 avaliações
A partir de

Yamanaka 172, Fuji, 401-0501, Japão
8,5mi de distância do hotel atual
Excelente
345 avaliações
A partir de

2152-2 Funatsu, Fujikawaguchiko, 401-0301, MINAMITSURU-GUN, Japão
2,3mi de distância do hotel atual
Muito Bom
71 avaliações
A partir de

1607 Matsuyama, Fujiyoshida City, Yamanashi, Japan , Fuji San, 4030016, Japão
3mi de distância do hotel atual
Bom
1.876 avaliações
A partir de

Funatsu 6713-22, Fuji, 401-0301, Japão
1,4mi de distância do hotel atual
Bom
2.308 avaliações
A partir de

3281-28 Shibokusa Oshino-mura C.T.Forest Minamitsuru-gun , Yamanakako, 4010511, Japão
5,9mi de distância do hotel atual
Bom
20 avaliações
A partir de

1216-1, Funatsu, Minamitsuru, 401-0301, Japão
1,9mi de distância do hotel atual
Agradável
0 avaliação
A partir de
Hotéis em destaque
Hotéis em destaque
Cidades próximas